アートミニ倉庫【満室】
【
倉庫
】
| 最寄駅 | 所在地 | 面積 | 築年月 | 賃料 管理費等 | 敷金 礼金 |
|---|---|---|---|---|---|
日暮里舎人ライナー線 見沼代親水公園駅 徒歩 7分 | 足立区舎人5 | 16.2㎡ | 1995年06月 |
- - |
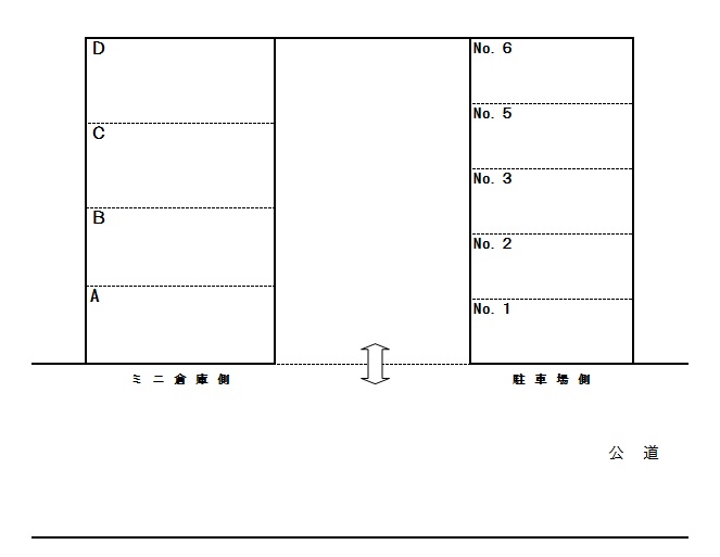
物件写真・間取り
物件概要
| 物件名 | アートミニ倉庫【満室】 |
|---|
| 交通機関 | 日暮里舎人ライナー線 見沼代親水公園駅 徒歩 7分 日暮里舎人ライナー線 舎人駅 徒歩 8分 |
|---|
| 建物構造 | 木造 |
|---|
| 契約期間 | 2年 |
|---|
| 現況 | 賃貸中 |
|---|
| 設備・条件 | シャッター、電気 |
|---|
| 備考 | 仲介手数料1ヶ月+税、指定保証会社加入要:賃料の100%、以後1万円/年、 |
|---|
| 取引態様 | 専任 |
|---|






